Casa indipendente in vendita

Montaldo Scarampi, Via Collina Forni - Forni
€ 133.000
Prezzo aggiornato
11 locali 11 locali
350 Mq 350 Mq
3 bagni 3 bagni

Casa indipendente in vendita

Montaldo Scarampi, Via Collina Forni - Forni

Descrizione annuncio

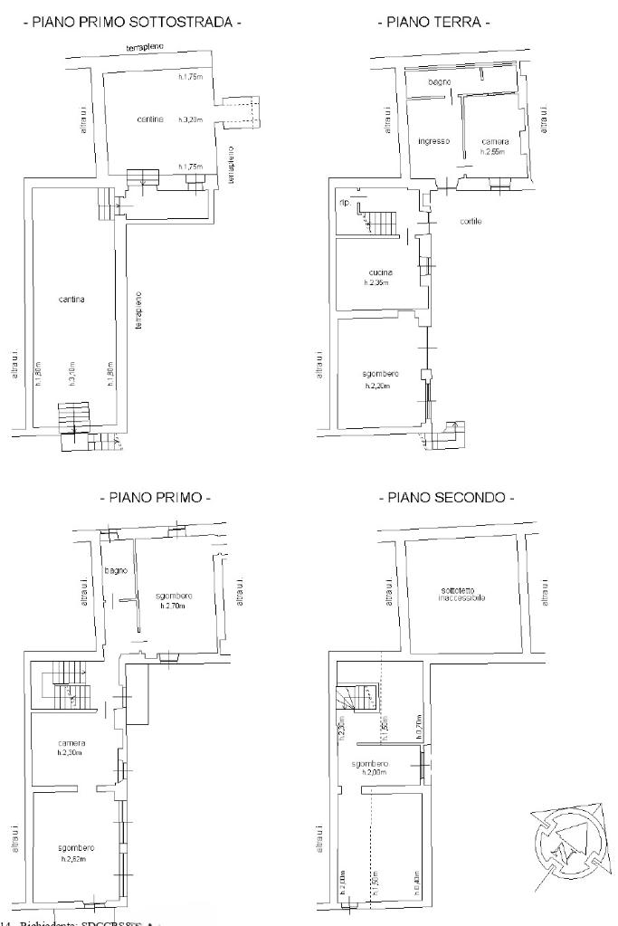
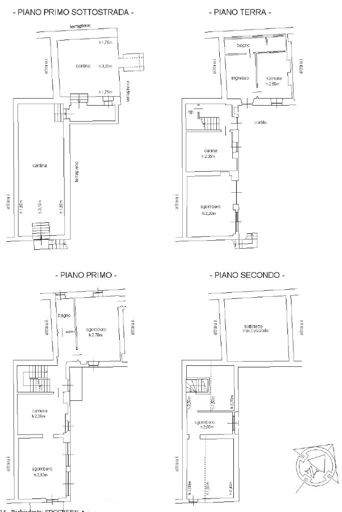
MONTALDO SCARAMPI - Cascinale indipendente su tre lati ma completamente disimpegnato, in posizione collinare, parzialmente abitabile ma riadattabile per diversi utilizzi: abitazione principale con più camere da letto, bed & breakfast o la combinazione delle due ma anche bifamigliare o casa vacanze con più unità abitative.
E' un immobile versatile ma che conserva il carattere e le particolarità della tipica cascina locale, mentre il fienile è stato ripreso creando un ambiente abitativo con vetrate sul giardino. Nell'interrato sono presenti due belle cantina di cui una scavata nel tufo, molto caratteristica.
L'abitativo si sviluppa su due livelli, con due cucine, tre bagni, terrazzo e numerose camere di varie metrature. Al piano terra troviamo un bilocale con accesso indipendente e tre ampi locali di sgombero ad uso garage/magazzino.
Nella parte esterna il giardino, privato e cintato è completato da un soleggiato terreno terrazzabile di oltre più di 4.000 mq. a corpo.

Per maggiori informazioni contattaci al 0141 961723 (anche WhatsApp) oppure passa nel nostro ufficio in Via Roma 63, Costigliole d'Asti.
La nostra agenzia ha solide radici sul territorio, grazie alla consolidata esperienza ed a contatti maturati nel tempo possiamo accompagnarvi in tutti i passaggi della compravendita e della locazione con l'affidabilità e la trasparenza che ci contraddistinguono dal 1998, in collaborazione con tutte le agenzie del gruppo; sono oltre 4000 le agenzie Tecnocasa nel mondo, professionisti nell'intermediazione immobiliare e creditizia.

Mostra tutto

Nelle vicinanze

Trasporto pubblico Trasporto pubblico
Trasporto pubblico
1,2 Km
Scuole Scuole
Scuola Media Statale "Filippo Carretto"
2,8 Km
Negozi Negozi
Negozi
1,3 Km
Ristoranti Ristoranti
El Argentino – Carne & Paella
520 m
Bar Ristorante Italia Fassio Curletti Vanda
1,3 Km
Mostra tutto

Caratteristiche

Rif.:
61128294
Piano:
Su più livelli di 3
Totale piani:
3
Box:
3
Balconi:
2
Terrazzi:
1
Mostra tutto
Prezzo Prezzo
€ 133.000
Rata mutuo Rata mutuo
€ 627 / mese
Proponi il tuo prezzoProponi il tuo prezzo

Classe Energetica

F
F
F
F
F
F
F
F
F
EP globale non rinnovabile:
312.10 kW h/m² anno
EP invernale del fabbricato:
EP estiva del fabbricato:
Anno di costruzione:
1900
Riscaldamento:
Autonomo
Tipo impianto:
A radiatori
Tipo alimentazione:
Metano

Prezzo ridotto di €1 (7%%)

Ti interessa visionare l'immobile?

Fissa un appuntamento  Fissa un appuntamento

Richiedi informazioni

Clicca su Leggi per aprire l'informativa
* Questi campi sono obbligatori

Calcola il tuo mutuo

Semplice e senza impegno
Anticipo

( % )
Mutuo

( % )

pochi semplici passi

inserisci i tuoi dati
Questionario completato
Grazie per aver richiesto un appuntamento senza impegno con un nostro Consulente del Credito e Assicurativo.

Hai inserito correttamente tutti i dati necessari e a breve riceverai una e-mail con un link da convalidare per inviare i tuoi dati.
Affiliato
Studio Costigliole D.I.
Via Roma, 63 14055 Costigliole D'Asti (AT)

Il nostro staff


  • Laura Caracciolo
    Affiliata

  • Laura Santarsiero
    Coordinatrice
Via Roma, 63 14055 Costigliole D'Asti (AT)
Zona: Costigliole d'Asti - Isola d'Asti-Antignano
Mostra su mappa
Orari: Lun. h. 9:00/13:00 mar-ven. 9:00/13:00 - 15:00/19:30; sab. h.9:00/13:00 - 15:00/18:00. Domenica su appuntamento
Affiliato
Studio Costigliole D.I.
Via Roma, 63 14055 Costigliole D'Asti (AT)

2026 Tecnocasa Franchising S.p.A. - P. IVA 08365160152 - Via Monte Bianco 60/A 20089 Rozzano (MI). Ogni agenzia ha un proprio titolare ed è autonoma. Privacy policy | Policy utilizzo | Cookie policy