Casa indipendente in vendita

Costigliole D'Asti, Strada Giaietti - Boglietto
€ 185.000
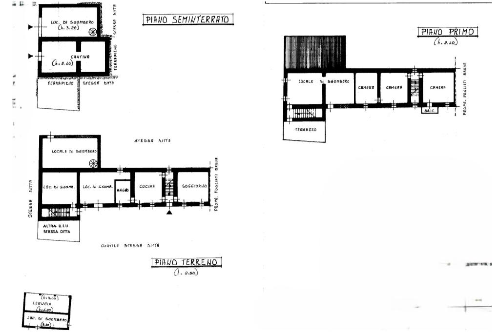
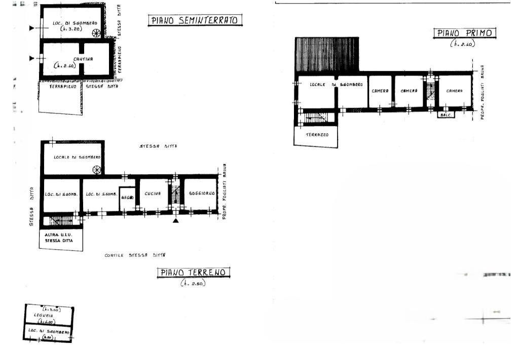
5 locali 5 locali
260 Mq 260 Mq
1 bagno 1 bagno

Casa indipendente in vendita

Costigliole D'Asti, Strada Giaietti - Boglietto

Descrizione annuncio

COSTIGLIOLE D'ASTI- In un contesto collinare, panoramico e parzialmente isolato, proponiamo questa interessante proprietà, ex azienda agricola, completamente libera su quattro lati e circondata da oltre quattro ettari di terreno agricolo al momento destinato a seminativo, noccioleto e piccolo vigneto.
La posizione è di spicco, soleggiata ma comunque poco distante dai servizi o dalle vie di collegamento. Il cascinale conserva alcune caratteristiche storiche tipiche della zona, tra cui un portico in mattoni e il fienile originale.

Per maggiori informazioni contattaci al 0141 961723 (anche WhatsApp) oppure passa nel nostro ufficio in Via Roma 63, Costigliole d'Asti.
La nostra agenzia ha messo solide radici sul territorio, grazie alla consolidata esperienza ed a contatti maturati nel tempo possiamo accompagnarvi in tutti i passaggi della compravendita e della locazione con l'affidabilità e la trasparenza che ci contraddistinguono dal 1998, in collaborazione con tutte le agenzie del gruppo; sono oltre 4000 le agenzie Tecnocasa nel mondo, professionisti nell'intermediazione immobiliare e creditizia.

Mostra tutto

Nelle vicinanze

Trasporto pubblico Trasporto pubblico
Costigliole d'Asti
Costigliole d'Asti
730 m
Calosso-Castiglione Tinella
Calosso-Castiglione Tinella
2,8 Km
Ristoranti Ristoranti
Cascina Collavini
2,8 Km
Mostra tutto

Caratteristiche

Rif.:
61128642
Piano:
Su più livelli di 3
Totale piani:
3
Box:
1
Balconi:
1
Terrazzi:
1
Mostra tutto
Prezzo Prezzo
€ 185.000
Rata mutuo Rata mutuo
€ 877 / mese
Proponi il tuo prezzoProponi il tuo prezzo

Classe Energetica

Questo immobile è esente da classe energetica
Anno di costruzione:
1900
Riscaldamento:
Autonomo
Tipo impianto:
A radiatori
Tipo alimentazione:
Metano

Ti interessa visionare l'immobile?

Fissa un appuntamento  Fissa un appuntamento

Richiedi informazioni

Clicca su Leggi per aprire l'informativa
* Questi campi sono obbligatori

Calcola il tuo mutuo

Semplice e senza impegno
Anticipo

( % )
Mutuo

( % )

pochi semplici passi

inserisci i tuoi dati
Questionario completato
Grazie per aver richiesto un appuntamento senza impegno con un nostro Consulente del Credito e Assicurativo.

Hai inserito correttamente tutti i dati necessari e a breve riceverai una e-mail con un link da convalidare per inviare i tuoi dati.
Affiliato
Studio Costigliole D.I.
Via Roma, 63 14055 Costigliole D'Asti (AT)

Il nostro staff


  • Laura Caracciolo
    Affiliata

  • Laura Santarsiero
    Coordinatrice
Via Roma, 63 14055 Costigliole D'Asti (AT)
Zona: Costigliole d'Asti - Isola d'Asti-Antignano
Mostra su mappa
Orari: Lun. h. 9:00/13:00 mar-ven. 9:00/13:00 - 15:00/19:30; sab. h.9:00/13:00 - 15:00/18:00. Domenica su appuntamento
Affiliato
Studio Costigliole D.I.
Via Roma, 63 14055 Costigliole D'Asti (AT)

2026 Tecnocasa Franchising S.p.A. - P. IVA 08365160152 - Via Monte Bianco 60/A 20089 Rozzano (MI). Ogni agenzia ha un proprio titolare ed è autonoma. Privacy policy | Policy utilizzo | Cookie policy